Dein Zuhause
Modulhäuser aus Massivholz - natürlich und unabhängigWir bauen modulare Häuser, die dir Wurzeln und Flügel schenken.
Mit Naturmaterialien aus der Region.
Unabhängig versorgt und reduziert auf das Wesentliche.
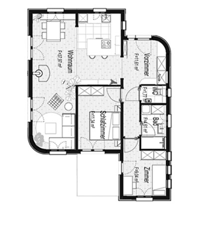
Wähle aus unseren bewährten Grundrissen bis 75 m² oder starte deine individuelle Planung.
Seit über 10 Jahren bauen wir für unsere KundInnen. In unsere beliebten Modelle von klein bis groß ist unsere langjährige Erfahrung eingeflossen, sodass die Fläche optimal genutzt wird. Gerne planen wir auch Projekte mit individuellem Grundriss. Vor allem für Modulhäuser über 50m² ist dies wichtig, um die Ausrichtung am Grundstück, Sonne, Wind usw. optimal zu berücksichtigen.
Jedes Wohnwagon-Projekt ist individuell – genau wie du.
Lass uns kurz sprechen, dann schicken wir dir nähere Infos und Preisbeispiele passend zu deinen Wünschen.
+43 2634-20590
Unsere Häuser sind ein Statement.
Sie wollen inspirieren und Freude machen.
Ein Wohngefühl mit der Kraft der Natur!
So kann Wohnen der Zukunft aussehen!
Machen wir uns gemeinsam auf den Weg?
Dein modulares Zuhause aus der Natur
Unsere Geschichte: Klein beginnen. Groß träumen!
Vor über 10 Jahren sind wir angetreten, um zu zeigen, wie zukunftsfähiges Bauen und Wohnen aussehen kann. Wir haben auf kleinstem Raum Wohnlösungen geschaffen, die im Kreislauf mit der Natur und autark funktionieren. Wir haben Raumkonzepte entwickelt, die eine lustvolle Reduktion auf das Wesentliche feiern und sich gleichzeitig großzügig anfühlen.
Gemeinsam mit unseren Kunden sind wir gewachsen.
Aus kleinen Pionier-Projekten wurden größere bis hin zu Mehrfamilienhäusern. Heute sind wir ein modernes Holzbau-Unternehmen mit über 45 MitarbeiterInnen. Wir nutzen unser Wissen, um jeden Quadratmeter optimal zu gestalten und begleiten unsere KundInnen mit viel Herz von der ersten Idee bis zur Schlüsselübergabe.
„Wir wollen die Essenz von Räumen spüren.”
Noch immer wird vielfach völlig überdimensioniert gebaut. Das betrifft sowohl die Fläche als auch die Technik. Was brauchst du wirklich? Wir finden es gemeinsam mit unseren KundInnen heraus.
Theresa Mai, Geschäftsführerin
Über uns
Seit über 10 Jahren bauen wir autarke Modulhäuser aus Massivholz. Im WOHNWAGON Team arbeiten mittlerweile über 45 Menschen gemeinsam an der Realisierung deiner Idee: Von der Planung bis zur Ausführung kommt alles aus einer Hand. Wir produzieren in Gutenstein, Niederösterreich.
Dein WOHNWAGON Team
Du hast Fragen zu unseren Modulhäusern?Dein WOHNWAGON Team
Wir beraten dich gern. Schreib uns deine Fragen und wir antworten dir so bald wie möglich … innerhalb unserer Bürozeiten.Tauche ein in die WOHNWAGON Welt!
Komm vorbei zum Probewohnen!
Österreich, Schweiz, Deutschland
Kommt's schauen!
Wir machen monatlich Werkstattführungen.
Wie könnte dein Zuhause aussehen?
Plane mit uns dein Modulhaus-Projekt aus Massivholz.
Nimm an unseren Veranstaltungen teil!
Wir vermitteln dir die Grundlagen.
So lebt sich's im autarken Massivholzhaus
Erfahrungsberichte, die Mut machen






























