Willkommen in deinem Urlaubs-Loft!
Huberto steht in Gutenstein in Niederösterreich (ca. 70 km südwestlich von Wien) – direkt neben Ronja und Luna.
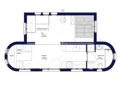
36m² Wohnfläche
mit großem Erker
ohne Fahrgestell
max. 4 Personen
Doppelbett + Eckbank (ausziehbar zum Doppelbett)
Bad mit Dusche, Trenntoilette und Waschbecken
Küchenbereich mit Herd, Spüle, Kühlschrank
PV-Anlage,
Holzofen
kein W-LAN
Haustiere dürfen leider nicht mitkommen. Wir bitten um dein Verständnis.
Loftartige Großzügigkeit, ...
Ein offener Kamin, der romantisch knistert, eine große Küche mit umfangreichem Selbstversorger-Paket: Was will man mehr! Huberto ist neben Luna und Ronja der Dritte im Bunde des Steinapiesting-Ensembles. Mit 36 m2 Wohnfläche ist er der große Bruder in der Runde und bietet mit einem Doppelbett sowie maßgeschreinertem Schlafsofa ausreichend Platz für Familien mit 2-4 Personen, die ein Leben auf das Wesentliche reduziert ausprobieren möchten. Eine gemütliche Küche, die verwöhnende Regendusche und ein einladender Außenbereich zwischen Luna und Ronja machen Huberto zum Entspannungsort!
Huberto bietet dir außerdem die Möglichkeit, die WOHNWAGON-Autarkie-Ausstattung zu testen: Die große Solaranlagen in Verbindung mit Infrarotheizung und Holzofen erlaubt einen sehr hohen Grad an nachhaltiger Unabhängigkeit in Sachen Wärme und Strom. Mit der Bio-Toilette wirst du zum Wasserspar-Pionier. Das Gründach trägt zudem zu einer hervorragenden Isolierung und Innenraumtemperatur zu jeder Jahreszeit bei.
Gebaut ist Huberto als Vollholz-Modul „unten ohne“: 2 Elemente wurden auf das Grundstück verkrant und stehen auf Schraubfundamenten, um einen tieferen Einstieg zu ermöglichen sowie die Ressourcen für das Fahrgestellt einzusparen. So kommt das Tiny House ohne Beton aus und bleibt komplett rückbaubar. Dank der natürlichen Baustoffe (Holz, Schafwolle, Lehmputz) darfst du dich auf einen richtig erholsamen Schlaf freuen: Dich umgeben nur gute Dinge!
Deine Gastgeber
Huberto wurde von uns gemeinsam mit Fynn in die Steinapiestig gebracht. Fynn wohnt in Brüssel und arbeitet dort bei einer Umweltorganisation zum Thema Kreislaufwirtschaft. Er begleitet Wohnwagon schon viele Jahre und wir freuen uns, dass wir mit Huberto ein so schönes gemeinsames Projekt auf die Beine stellen konnten!
Fynn und das Wohnwagon Team haben Huberto mit viel Liebe zum Detail einen fröhlichen Flair verpasst, modern und natürlich. Außerdem legten sie den Fokus ganz auf Autarkie und Nachhaltigkeit. So wurde nicht nur bei der Bausubstanz und Energieversorgung darauf geachtet, dass der Bau und Betrieb von Huberto die Umwelt so wenig wie möglich belastet. Einrichtungsgegenstände sind gebraucht gekauft, regional und\oder von Unternehmen, die den Anspruch und die Vision von Wohnwagon in Sachen Nachhaltigkeit teilen. Ein Aufenthalt in Huberto soll so zu nachhaltigen Lebensstilen inspirieren und einen gemütlichen Ort schaffen — zum Abschalten und Entspannen, oder auch zum nachhaltigen Probewohnen!
Adresse
Steinapiesting 7
2770 Gutenstein / Niederösterreich
GPS: 47.882899, 15.878751
In Google Maps ansehen »
Unsere Empfehlung: Bleib mind. 2 Nächte!
Wir empfehlen dir einen Aufenthalt von zumindest 2 Nächten, damit du so richtig ankommen und das WOHNWAGON-Feeling voll genießen kannst. Bleib gern auch länger und profitiere von unseren Aktionen!
Infos zum Standort
Huberto steht mit den Wohnwagons Ronja und Luna ca. 1,2 km entfernt vom “Zentrum” Gutensteins in der Steinapiesting. Weit weg vom Trubel und der Hektik des Alltags, im Tal zwischen Wald und dem rauschenden Steinapiestingbach. Nicht zu selten teilen sich dabei Huberto, Ronja und Luna die Wiese mit Rehen, die aus dem Wald heraus zu Besuch kommen. Du bist hier weit weg vom Trubel und der Hektik des Alltags. Ohne ständig erreichbar zu sein und ohne Internet. Einfach mal abschalten.
Gutenstein, Eisdiele und Freibad sowie zahlreiche schöne Wanderungen sind von Huberto aus zu Fuß und mit dem Fahrrad erreichbar. Die Gegend um Gutenstein hat für alle etwas zu bieten, von aufregenden Kletterwänden und Mountainbike Trails bis hin zu Workshops in lokalem Handwerk. Was es in der Region sonst noch zu entdecken gibt, haben wir für euch auch unter den Infos & Ausflugstipps zusammengefasst.
Zur Grundausstattung unseres Wohnwagons gehören:
- Bettwäsche & Handtücher
- Shampoo & Duschgel
- Brennholz
- inspirierender Lesestoff
- Koch-Geschirr
- Tee, Kaffee, Kakao, Saft
- Butter, Marmelade
- Müsli, Cornflakes, Rosinen
- Pasta, Reis, Essig, Öl, Gewürze
Aus unseren Wasserhähnen fließt ausschließlich bestes, frisches Trinkwasser aus den Gutensteiner Quellen.
Zur Ergänzung nimm deine individuellen Frühstücks-Lieblinge von Zuhause oder unserem Nahversorger mit und schon ist dein Frühstück perfekt!
Autofrei nach Gutenstein
Von Wiener Neustadt fährst du ca. 45 Minuten mit dem Regionalzug das wunderschöne Piestingtal entlang bis zum Bahnhof Gutenstein. » www.oebb.at
Von dort sind es noch 2,8 km bis zum Standort. Dafür kannst du entweder einen Shuttle buchen oder zu Fuß gehen bzw. einen Teil mit dem Bus fahren:
Shuttleservice
Für die Strecke zwischen Bahnhof Gutenstein und unseren Wohnwagons bietet Markus von der Dorfpension einen Shuttleservice an: 8 € für eine Fahrt, hin und zurück 16 €. Erreichbar ist er unter der Rufnummer 0677 / 64 81 29 97. Bitte rechtzeitig Bescheid sagen, damit er auch Zeit hat.
Zu Fuß zum Wohnwagon
In etwa 20 Minuten (1,6 km) gelangst du auf ebener Strecke bis ins »Zentrum« von Gutenstein. Auf der Strecke kommst du nicht nur an schönen Biedermeiervillen vorbei, sondern auch am Eiscafe, dem Waldbauernmuseum und unserem Laden Nah&Frisch.
Wenn du nicht die ganze Strecke zu Fuß gehen möchtest: Mit den Buslinien (339, 340) kannst Du vom Bahnhof in 3 Minuten bis Gutenstein Markt fahren.
Fahrplanauskunft: » Fahrplanauskunft vor.at
Start: Gutenstein (NÖ) Bahnhof
Ziel: Gutenstein (NÖ) Markt
Von Gutenstein Markt (gegenüber von Nah&Frisch) sind es nur noch 1,2 km bis zu Huberto, zu Fuß etwa 17 Minuten. Auf einer wenig befahrenen Straße geht es durch eine Klamm an einem Bach entlang bis zum Standort von Ronja, Luna und Huberto.
Komm zum Probewohnen!
Weitere WOHNWAGONS zum Probewohnen:

Luna
- 26 m²
- für 1-4 Personen
- Grundmodul mit Erker
- ohne Fahrgestell
- in einem ruhigen Tal von Gutenstein neben den Wohnwagons Ronja & Huberto

Ronja
- 18 m²
- für 1-2 Personen
- Grundmodul ohne Erker
- ohne Fahrgestell
- in einem ruhigen Tal von Gutenstein neben den Wohnwagons Luna & Huberto

Karl
- 14 m²
- für 1-2 Personen
- Grundmodul ohne Erker
- mit Fahrgestell
- in Traismauer in der Region Krems

Isidor
- 26 m²
- für 1-4 Personen
- Grundmodul mit Erker
- mit Fahrgestell
- auf einem Bauernhof im Mühlviertel

Hubert
- 36 m² mit großem Erker
- für 1-4 Personen
- in Bayern in der Nähe des Altmühltals
- in einem wunderschönen Garten
